Urban Makelaars
Direct contact?
Bel nu:
Klik:
020.303.5090
toggle menu
Home
Woningaanbod
Verkochte woningen
Online Waardebepaling
Over ons
Urban Makelaars
Onze missie
Onze tarieven
Algemene bepalingen
Privacy statement
Vacatures
Urban verkooptips
Urban Makelaars ABC
Onze bijdrage aan de wereld
Reviews
Diensten
Zoekopdracht
Waardebepaling
Aankoopmakelaar
Taxatie
Uw huis verkopen in Amsterdam?
Hypotheek berekenen
Aanvragen energielabel
Makelaar vergelijken
Contact
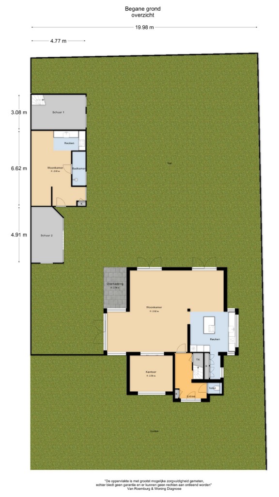
Hoofdweg 57
1175 KM Lijnden
€ 1.350.000
k.k.
Overzicht
Omschrijving
Kenmerken
Foto's
Locatie